万达边金辉三期到实验九年制学校五分西边户采光户型 130

13887元/㎡

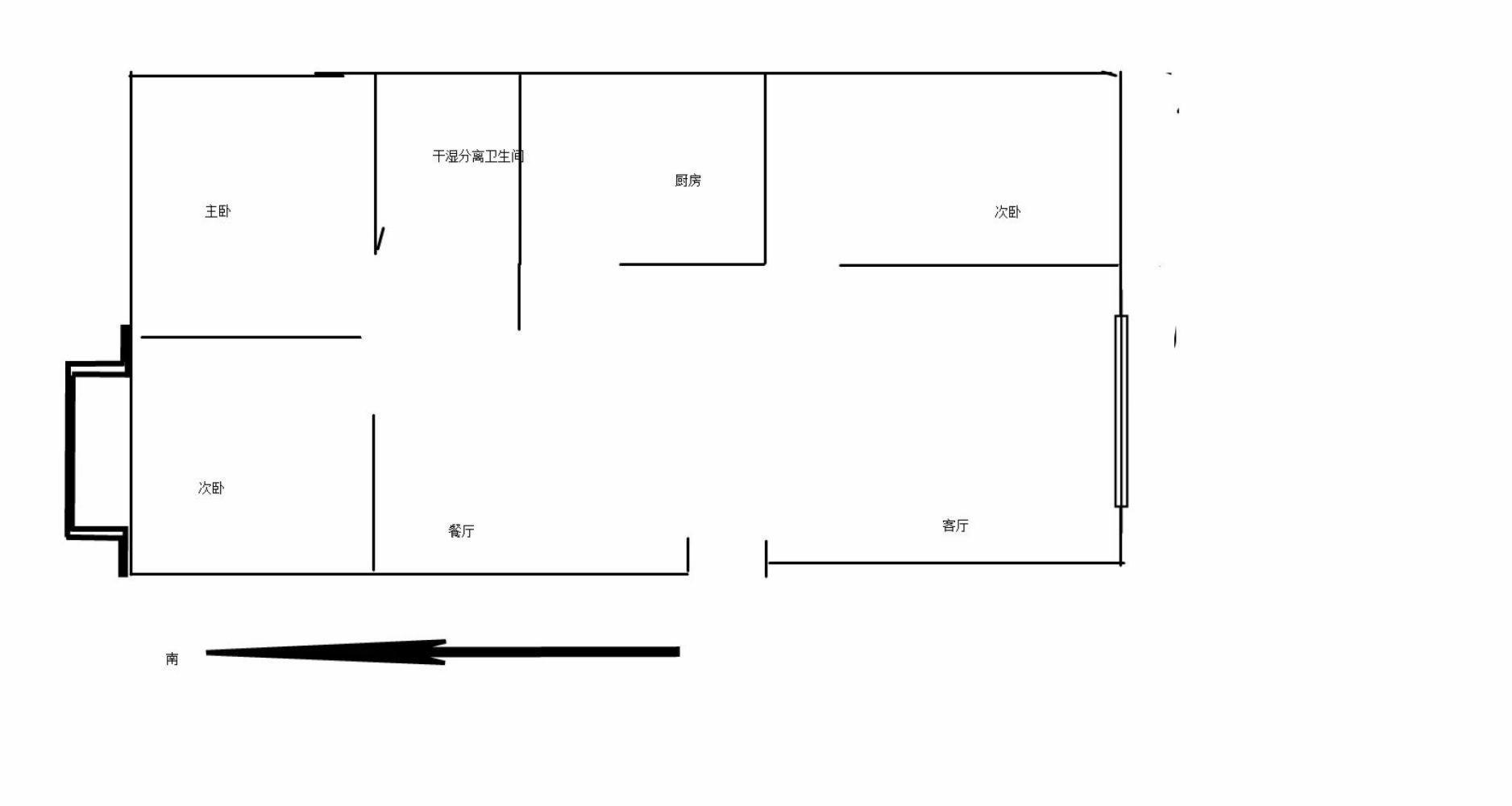
南北通透急售

3室2厅1卫

户型

93㎡

建筑面积

南向

朝向

精装修

装修

2018年

建造年代

23层

共27层

住宅

房产类别

商品房

产权类型

70年

产权年限

有无电梯
房源动态
  • 100%

    看房处理

  • 2218

    已浏览

  • 0

    已预约

  • 本月更新

    最近登录

描述

核心卖点
                            
                        一楼层:楼层好二户型:全明通透,布局合理,没有浪费面积三校区:双学校区房采光:采光好,前后无遮挡税费:各付税费产权:产权明晰无纠纷,产权人全力配合到场签合同方式:全款,按揭装修:毛坯
                    售房原因   业主因换工作原因,购置新房是否急卖   是委托情况   已签委托书价格空间   看中可谈房子产权明晰,无任何不良抵押,齐全,房东目前需要资金换新房,全权委托我们公司帮忙找买家,由于地段好,小区环境以及配套设施都很到位,尤其是价格要求,如果买家诚意,房东很愿意谈的,房东要求,越快越简单越好。小区环境优雅,配套成熟,交通便利,居住舒适.本人四季金辉,恒大名都,东方瑞园,苍梧六期,苍梧三期,苍梧小区,同科汇丰同科,明珠皇冠,秀逸苏杭,兴业时代花园,君悦财富广场,锦绣江南,香溢世纪花城,香溢江南,温哥华国际花园,中央华府,海连新天,杏坛花园,金秋情缘,御景龙湾,凤凰名都,恒润郁洲府,水木花园,润城东方,一品苑,蓝天华侨城,日月花园,万顺园,万润园,万润怡景苑,水墨江南,九龙城市乐园,世纪凤凰城,吾悦广场,兴业小区,玉带新村,仕方国际,碧桂园,合力铂金公馆等全海洲房源在售,告诉我您的需求,帮您找到满意的家

配套

电话,热水器,空调,床

图片
位置
  • 交通地段
  • 教育机构
  • 医疗设施
  • 购物商超
  • 餐饮娱乐
猜您喜欢
免责声明:房源信息由网站用户提供,其真实性、合法性由信息提供者负责,最终以政府部门登记备案为准。本网站不声明或保证内容之正确性和可靠性,购买该房屋时,请谨慎核查。请您在签订合同之前,切勿支付任何形式的费用,以免上当受骗。
万先生经纪人

电话:

18036613993
手机看房源
同小区房源